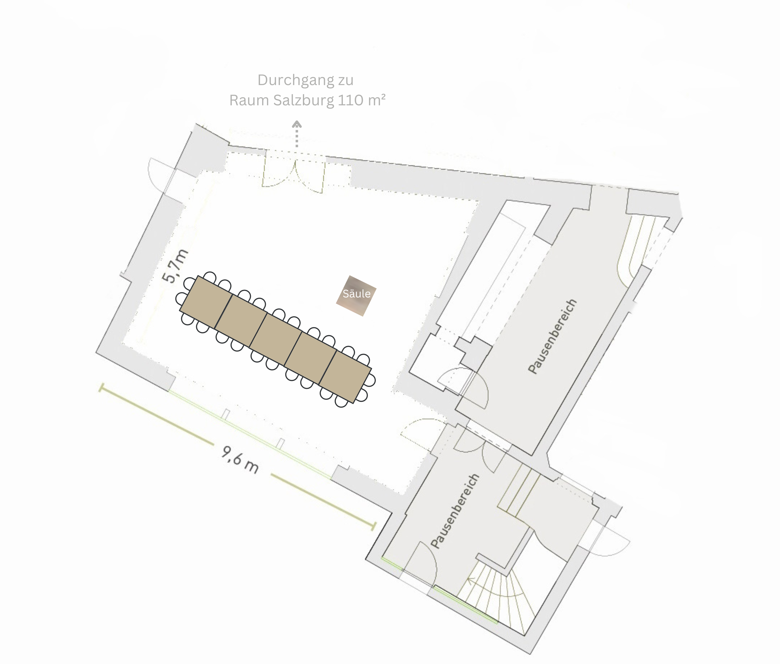
Raum Königsee
Unser Raum Königssee zeichnet sich durch seine einzigartige Atmosphäre aus. Die Kombination aus traditionellem Charme und modernem Design schafft eine harmonische Umgebung, die Ihre Gäste begeistern wird.
Unser Raum Königssee zeichnet sich durch seine einzigartige Atmosphäre aus. Die Kombination aus traditionellem Charme und modernem Design schafft eine harmonische Umgebung, die Ihre Gäste begeistern wird.