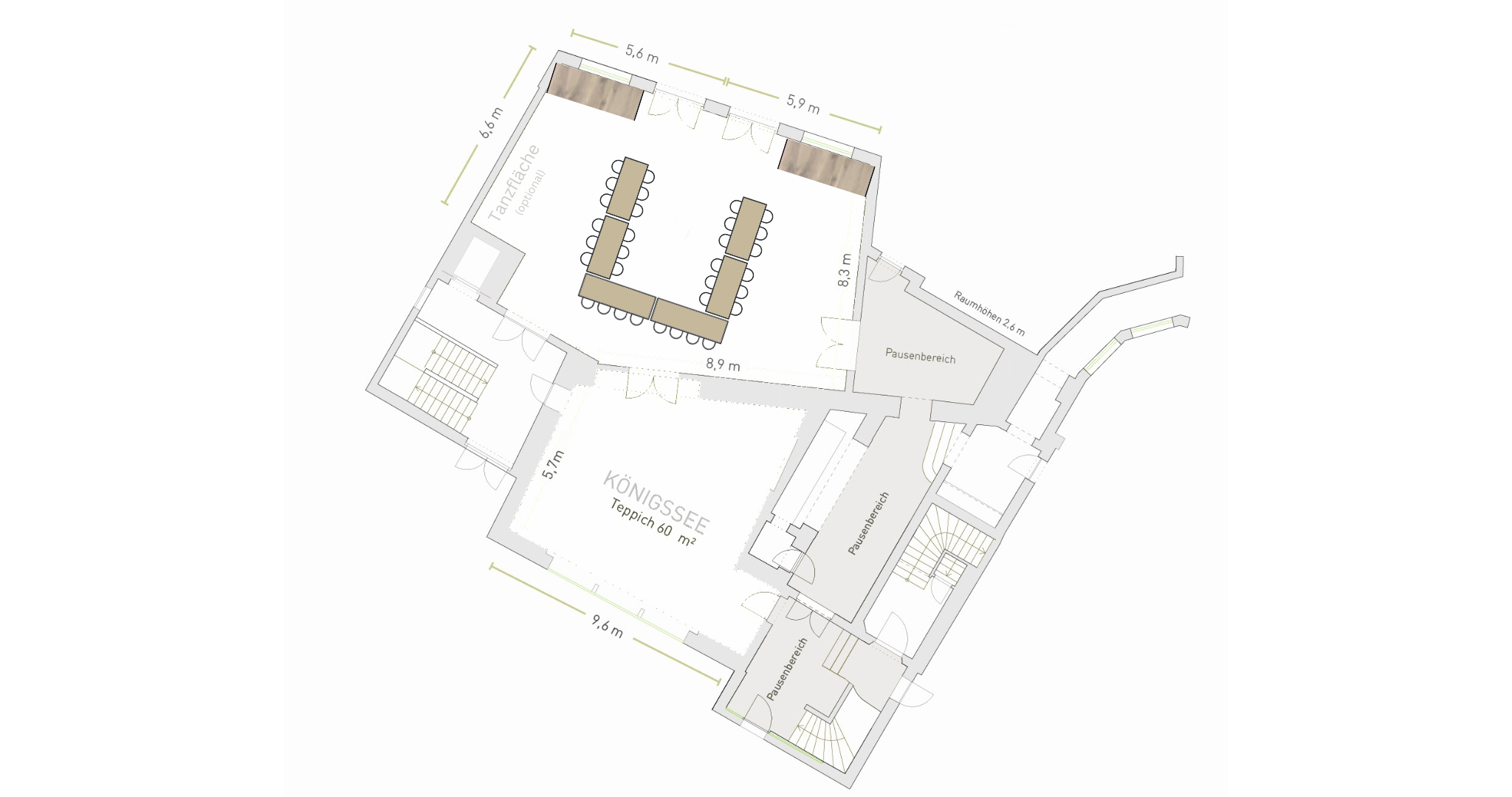
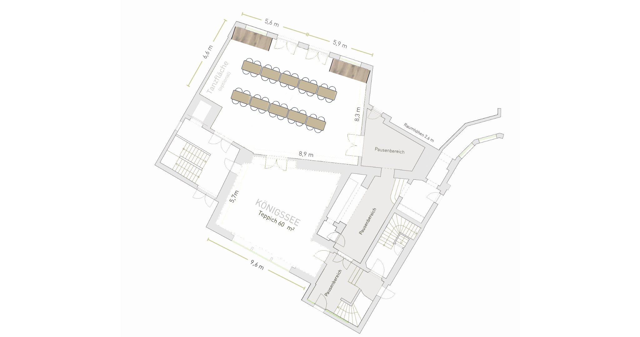
Raum Salzburg

Der Raum Salzburg ist der Inbegriff von natürlicher Eleganz. Mit großer Fensterfront und direktem Zugang zum Garten bietet er eine einzigartige Kombination aus Eleganz und Naturnähe. Ob Hochzeit in kleinerem Rahmen, Geburtstag, Firmenfeier oder Jubiläum - der Raum Salzburg passt sich Ihren individuellen Wünschen und Anforderungen an.

UNSERE RÄUME

Wir machen Ihr Event zum Erlebnis!

Raum Salzburg

bietet Platz bis zu 40 Personen

Größe m²: 110

 

kann mit dem 

 

Raum Königssee

Größe m²: 60

 

verbunden werden